イドとセド
ido and sedo 2024


























日本建築の系譜は、京都をはじめとする温暖な地域と金沢などの寒冷地では異なる展開をしてきた。京都の町家では縁側に代表される半屋外空間や、前栽や中庭、庭先など外気に開かれた多様な空間が発達した。一方、寒冷地である金沢の町家では、通り庭や土縁などの土間空間が半屋内的に扱われ、多様な土間空間として発展していく。また、雪下ろしや洗濯などの生活と庭を兼ねた「セド」と呼ばれる外部空間が敷地奥に設けられる。


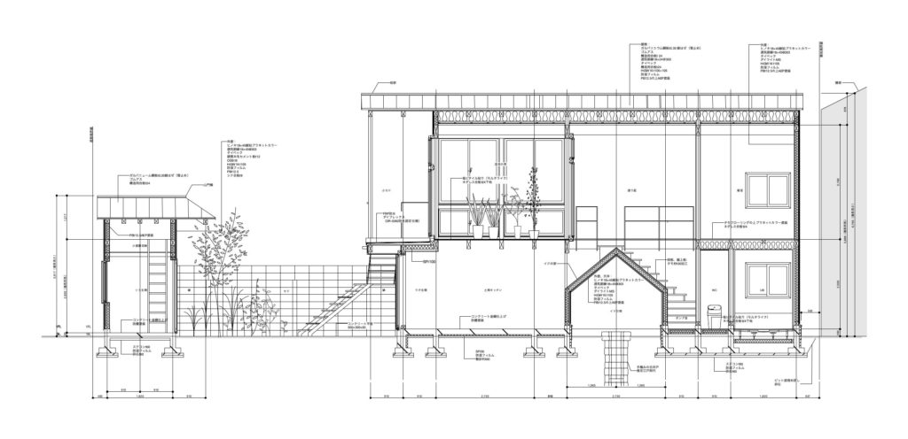
計画地は、金沢の寺院群が広がる歴史保存区域内に位置するが、街並みからはその記憶が薄れつつある。かつては3連長屋の中央にあたり、元の部屋輪郭をなぞるように敷地境界が雁行した凸凹な異形地である。古井戸があり、それを活かした温室を含む別荘が求められた。前面道路には長くペンディングされている拡張計画があり、役所の指導により母屋はセットバックを求められた。温室の位置は密集する隣家の隙間を手がかりに採光条件を検討し、決定した。その結果、井戸の真上に母屋が位置することとなった。また、もしもの場合には曳き家するという条件のもと、道路側に小屋を設けた。小屋は非断熱の土間空間で、寺院の山門が境内の入り口を示すように、この敷地の閾となっている。

温室の間の検討
敷地の南東から南西にかけて隣家が迫り、十分な採光を得にくい条件であったため、温室の配置を検討した。隣家の形状も含めて立体的にシミュレーションを行った結果、道路奥の2階部分で採光が確保できることが確認され、井戸の上に建物を計画する方針が定まった。
この小屋と母屋の間に敷地形状をなぞるようにブロック塀で囲んだセドがある。セドを中心に、屋根のあるバルコニーや縁が建物との緩やかな接点となり、複数の半屋内空間が展開する。このセドは、近隣寺院の伽藍配置に見られる山門と本堂の間の境内の空間性とも重なる。
母屋に入ってすぐに複数の機能をもった土間があり、その先にイドの間がある。そこは建築の内部にありながら、家型を形取った半屋外空間である。古くから多くの文化で井戸は信仰の対象とされている。その延長において、このイドの間は神棚のような象徴的な存在となっている。床柱のように構造的な意味から切り離された1本の柱は、棟の軸線からずれ、45度振られている。ラピスラズリで塗装したその姿は、空間の垂直軸を示しながら、無造作に立つモノリスである。
金沢の町家が歴史の中で洗練させたセドや半屋内空間など、環境に応答して形成されてきた形式、近隣寺院における山門、境内、本堂へ至る伽藍配置、そして温室のような現代的要素を横断的に結び直すことで、寒冷地における空間構造を地域文脈のうえで再編しようとした試みである。


Ido and Sedo — Between the Well and the Courtyard in Kanazawa’s Vernacular Architecture
The project is located in Kanazawa, a city on the Japan Sea coast known for its heavy snowfall in winter, humid and hot summers, and a historic urban fabric that still retains traces of its former feudal capital character.
During the site survey, I visited Seikouken, a teahouse within Kenrokuen Garden. Its composition—wrapping a layer of semi-outdoor space around the tea room under the conditions of a cold, snowy climate—left a strong impression on me as a form of environmental responsiveness cultivated through history.
The project site is located nearby, within a historic preservation district where a cluster of Kanazawa’s temples stand, though much of the city’s memory is gradually fading from the streetscape.
According to Noboru Shimamura’s Kanazawa no Machiya (Kanazawa Townhouses, SD Selections, 1972), a sedo is an outdoor space located at the rear of long, narrow townhouses in Kanazawa, functioning both as a courtyard and as a place for daily activities such as snow removal or laundry.
In contrast, the doma—a semi-interior earthen-floored space found within the house, including entrance halls, passageways, and inner gardens—serves as a threshold between the exterior and the interior. In Japan, removing one’s shoes is culturally synonymous with entering the interior; the doma occupies the condition just before this act. Although roofed, it allows outdoor behavior to continue within, its floor finished with rammed earth or concrete and set close to the ground, drawing the continuity of the exterior directly into the house.
In warmer regions such as Kyoto, these spaces tend to remain open and well ventilated, while in Kanazawa’s cold, snowy climate they have become more enclosed and internally layered. The coexistence of the outdoor sedo and the semi-interior doma creates a unique spatial gradient between house and climate, a distinctive vernacular characteristic of Kanazawa’s architecture.
This sensibility also resonates with the spatial structure of Seikouken.
The site itself once formed the center of a three-unit row house, and its boundaries follow the traces of former rooms, creating a complex, irregular shape. An old well remains on site, and the client wished to incorporate it into a small villa that includes a greenhouse. The front road has a long-pending widening plan, requiring the main building to be set back. Daylight conditions were studied through the narrow gaps between neighboring houses, which led to the placement of the greenhouse—and as a result, the main house came to stand directly above the well. Under the condition that the structure could be moved if necessary, a small non-insulated annex was placed along the road, evoking the presence of a temple gate. Beyond it lies a walled sedo that traces the site’s irregular form, followed by the main house.
Upon entering the main house, one first encounters a multifunctional doma space, and beyond it, the well itself. The well, though enclosed within the building, forms a semi-outdoor space shaped like a house. In many cultures, wells have long been objects of reverence; in Japan, they are associated with local beliefs and rituals of appeasement. In that sense, this “house of the well” functions as a symbolic presence, akin to a household shrine. A single column—detached from any structural necessity—stands slightly off the roof’s central axis, rotated forty-five degrees. Clad in lapis lazuli, the column acts as a monolith that marks the vertical axis of space.
At the center of the composition, a walled sedo connects to the building through softly articulated edges such as roofed balconies, verandas, and doma spaces, forming gentle intermediaries between house and landscape. This sedo recalls the spatial character of temple precincts in Kanazawa, situated between the main gate (sanmon) and the main hall (hondō). Through continuous dialogue with the climate and the site, a courtyard that could be called either a sedo or a precinct emerged naturally—shaping a relationship between inside and outside that resonates with the regional context.
| 用途 | 専用住宅 |
| 所在地 | 石川県金沢市 |
| 敷地面積 | 119.40m2 |
| 建築面積 | 48.84m2 |
| 延床面積 | 63.71m2 |
| 設計 | 髙木貴間建築設計事務所 髙木貴間 |
| 構造 | 長谷川大輔構造計画 長谷川大輔 |
| 施工 | 新協建設工業 |
| 写真 | 永井杏奈 |




